




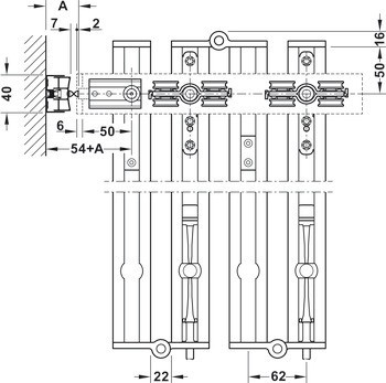
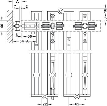
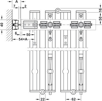
1 vozík, 4kolečkový
2 otočná ložiska (1 nahoře/dole)
8 upínacích patek pro sklo, délka 230 mm
1 vedení
1 středící sada pro dveřní křídlo





| Rozsah použití | | Systémy se spodní kolejnicí | Systémy bez spodní kolejnice |
|---|---|
| Poznámka k montáži | Otočné dveřní křídlo pro skládací stěnu lze dole zajistit například podlahovým zavíračem.Doplňkové zamykání nahoře pro pojezdovou kolejnici lze provést pomocí jiného podlahového zavírače. |
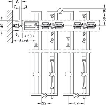
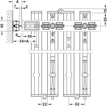
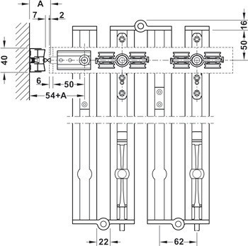
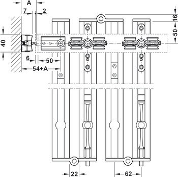
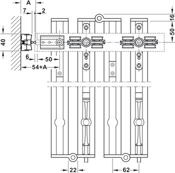
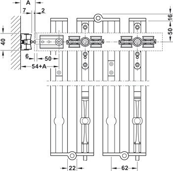
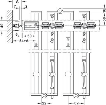
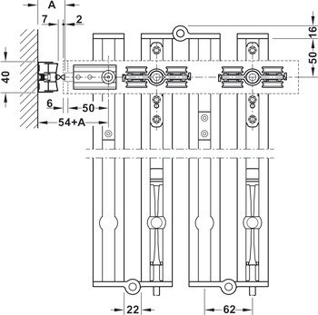
| Zařízení pro nastavení | Height adjustment -5/+2 mm, Výška -5/+2 mm |
| Pro materiál dveří | Sklo |
| Pro výšku dveří | ≤3000 mm |
| Počet dveří v systému max. | >4 |
| Pro šířku dveří | 500 – 1000 mm |
| Pro hmotnost dveří | ≤100 kg |
| Materiál/Povrchová úprava | Pojezdová kolejnice: HliníkVodicí kolejnice: HliníkVozík: OcelKolečko: Plast, Barva stříbra, elox |
| Vhodné pro | Flexibilní rozdělení místnosti nebo vizuální dělení |
| Montáž | Zavěšení s přiléhajícím spojením přírubou na sklo |
| Typ montáže | Montáž na strop|Integrovaná montáž na strop |
| Pro typ skla | Tvrzené bezpečnostní sklo (ESG)|Vrstvené bezpečnostní sklo (VSG) |
| Pro tloušťku skla s tvrzeným bezpečnostním sklem (ESG) | 10 mm, 12 mm |
| Pro tloušťku skla s vrstveným bezpečnostním sklem (VSG) | | 13 mm | 10–10,7 mm |
| Typ sady | | Základní sada | Doplňková sada | Sada pro otočné dveře pro skládací stěnu | Sada pro otočné dveře |
| Verze | | Bez vedení | S vrchním vedením | S otočným ložiskem nahoře a dole | S horním otočným ložiskem a bodovým ložiskem s nastavitelnou patkou dole | S horním a spodním vedením | s horním otočným ložiskem a spodním bodovým ložiskem |
| Pružina | | Rohové zavěšení | Středové zavěšení | Rohové zavěšení, Středové zavěšení |
| Šířka systému 1stranná | 6,00 m | 6.00 m |
| Šířka systému 2stranná | 12,00 m | 12.00 m |