




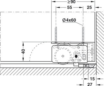
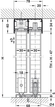
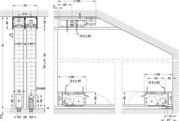
2 Vozíky
2 vodicí vozíky
2 adaptéry pro vozík
2 vložené dorazy a dveřní dorazy
2 dorazy vodicí kolejnice
1 koncovka kolejnice

| Verze | Základní sada |
|---|---|
| Rozsah použití | Pro 1 dveře |
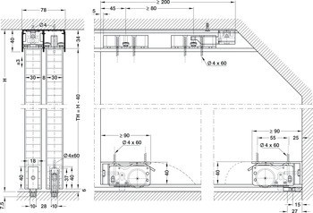
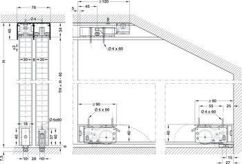
| Model | Základní sada EKU Divido 80 H |
| Pro tloušťku dveří | ≤30 mm |
| Pro materiál dveří | dřevo |
| Pro výšku dveří | ≤2,400 mm |
| Počet dveří v systému max. | 1 až 4 |
| Počet dveří | 1,00 |
| Mechanismus tlumeného zavírání | s mechanismem tlumeného zavírání (volitelně) |
| Pro šířku dveří | ≤2,000 mm |
| Pro hmotnost dveří | ≤80 kg |
| Poloha pojezdu | Dole |
| Zpracování dveří | k přišroubování |
| Vhodné pro | Sklony střechy |
| Typ montáže | Montáž na strop |