




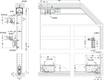
1 podpěra s vodícím kolečkem
1 doraz pro pojezdovou kolejnici
4 TAP-SE šrouby M4 x 8 mm

| Verze | | s policovým vedením pro částečně šikmé stropy |
|---|---|
| Rozsah použití | Šikmé stropy |
| Model | | 80 H DS3 |
| Pro tloušťku dveří | | ≤30 mm |
| Pro materiál dveří | | dřevo |
| Pro výšku dveří | | ≤2,400 mm |
| Počet dveří | | 1,00 |
| Pro šířku dveří | | ≤2,000 mm |
| Pro hmotnost dveří | | ≤80 kg |
| Materiál/Povrchová úprava | | prázdné |
| Poloha pojezdu | | Dole |
| Zpracování dveří | | S výřezem |
| Vhodné pro | | Sklony střechy |