




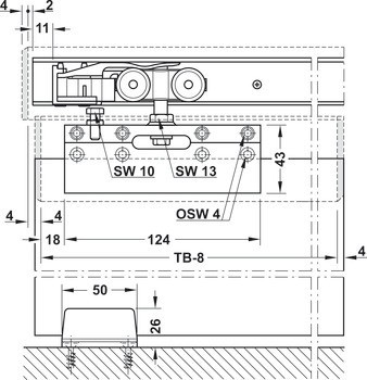
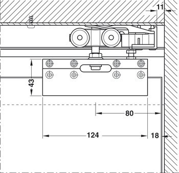
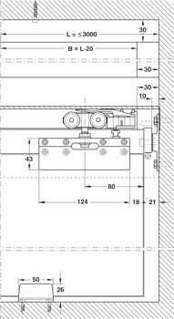
2 vozíky
2 závěsné šrouby M8 x 32
2 matice
2 upínací patky
2 dorazy kolejnice (1 s přídržnou pružinou, 1 bez přídržné pružiny)
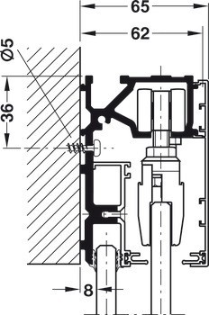
1 doraz na stěnu
1 rovné prahové podlahové vedení

| Verze | Hliníkový panel k nacvaknutí nebo díl k nacvaknutí pro dřevěný panel (volitelně) |
|---|---|
| Rozsah použití | Pro 1křídlé a 2křídlé posuvné dveřePro montáž na stěnu nebo montáž na strop |
| Model | Porta 100 GU |
| Zařízení pro nastavení | Height adjustment: -4 – 4 mm, Výška: +10, –5 mm, boční nastavení dveří |
| Pro materiál dveří | sklo |
| Pro výšku dveří | ≤2,700 mm |
| Počet dveří v systému max. | 1 až 2 |
| Počet dveří | 1,00 |
| Mechanismus tlumeného zavírání | s mechanismem tlumeného zavírání (volitelně) |
| Pro šířku dveří | ≤1,200 mm |
| Pro hmotnost dveří | ≤100 kg |
| Poloha pojezdu | Nahoře |
| Zpracování dveří | Bez přípravy skla |
| Typ montáže | Montáž na strop, Montáž na stěnu, Pevné zasklení |
| Pro typ skla | Tvrzené bezpečnostní sklo (ESG) |
| Pro tloušťku skla s tvrzeným bezpečnostním sklem (ESG) | 8 mm, 10 mm, 12 mm, 12.7 mm |