




2 vozíky
2 závěsné šrouby M8 x 25
2 upínací patky
2 dorazy kolejnice (1 s přídržnou pružinou, 1 bez přídržné pružiny)
1 doraz na stěnu
1 rovné prahové podlahové vedení
12 klipů panelu
1 sada upevňovacích šroubů


| Rozsah použití | | Pro 1křídlé a 2křídlé posuvné dveře | pro 1křídlé posuvné dveře (pro Hawa Porta 100 GW)pro 1křídlé a 2křídlé posuvné dveře s fixačním profilem pro pevné zasklení (pro Hawa Porta 100 GWF)synchronní otevírání 2 dveří (Hawa Porta 100 GW/GWF Synchro) |
|---|---|
| Model | | Porta 100 GW/100 GWF | 100 GW/GWF |
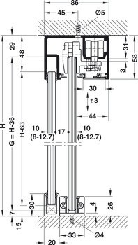
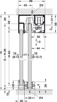
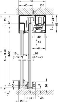
| Zařízení pro nastavení | | Height adjustment: -3 – 3 mm, Výška ±3 mm |
| Pro materiál dveří | | sklo |
| Pro výšku dveří | | ≤2,700 mm |
| Počet dveří v systému max. | | 1 |
| Počet dveří | | 1,00 | 1,0 |
| Mechanismus tlumeného zavírání | | s mechanismem tlumeného zavírání (volitelně) |
| Pro šířku dveří | | ≤1,600 mm |
| Pro hmotnost dveří | | ≤100 kg |
| Poloha pojezdu | | Nahoře |
| Zpracování dveří | | S výřezem |
| Typ montáže | | Montáž na strop |
| Pro typ skla | | Tvrzené bezpečnostní sklo (ESG) |
| Pro tloušťku skla s tvrzeným bezpečnostním sklem (ESG) | | 8 mm, 10 mm, 12 mm, 12.7 mm |