




1 kluzák
1 vedení panelu
1 sada upevňovacího materiálu
1 montážní návod

| Barva/povrchová úprava | | Bílá, Hladká bílá |
|---|---|
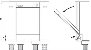
| Rozsah použití | | Pro vedení a podpěru sklopného panelu u vestavných myček |
| Montáž | | K přišroubování |
| Materiál | | Plast |
| Zařízení pro nastavení | |
| Montáž | | Pro použití na levé a pravé straně |
| Kompatibilní s | | Pro vedení a podpěru sklopného panelu u vestavných myček |