









| Barva/povrchová úprava | nikl | Barva titanu, galvanicky pozinkováno |
|---|---|
| Rozsah použití | pro standardní aplikace |
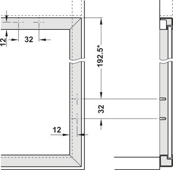
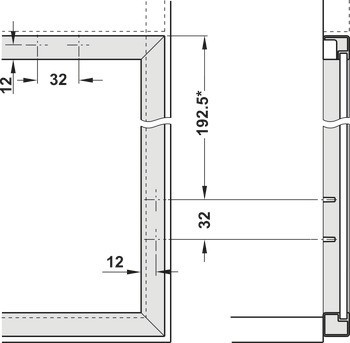
| Montáž | Dveře na korpus s nasouvací technikou A nebo systémem rychlomontáže SM |
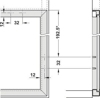
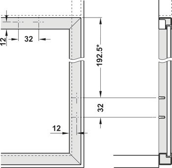
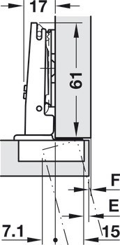
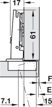
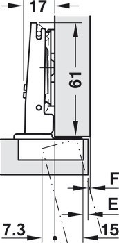
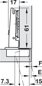
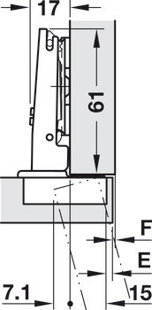
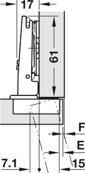
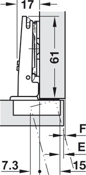
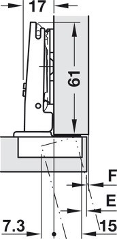
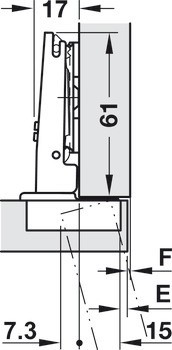
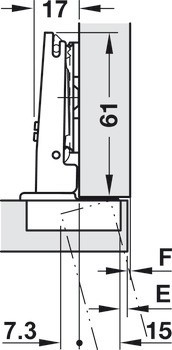
| Zařízení pro nastavení | Side adjustment 4.5 mm, Height adjustment -2 – 2 mm, nastavení hloubky s montážními podložkami Metalla 510 A +2,8 mm, s montážními podložkami Metalla 510 SM od -0,5 do +2,8 mm |
| Materiál | Ocel |
| Typ zalomení | Rovné |
| Pro materiál dveří | dřevo |
| Verze nábytkového závěsu | plně naložené |
| Zpracování dveří pro sestavení | s vrtáním misky |
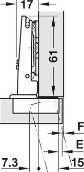
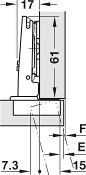
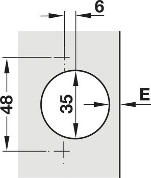
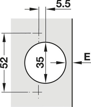
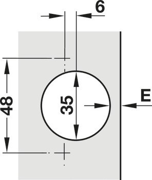
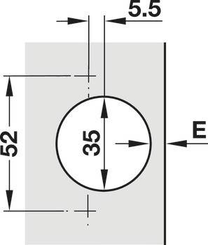
| Hloubka vrtání misky | | 13.5 mm | 13,50 mm | 11,00 mm | 13.50 mm | 11,0 mm |
| Verze | | S automatickou dovírací mechanikou, S mechanismem tlumeného zavírání | S automatickou dovírací mechanikou, Bez mechanismu tlumení | Bez automatické zavírací pružiny, Bez mechanismu tlumení |
| Montáž misky závěsu | | K nalisování | k naražení | k přišroubování | bez nářadí |
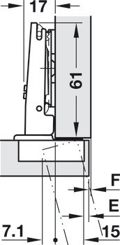
| Úhel otevření | 110° |
| Model No. | C2P6A99 |
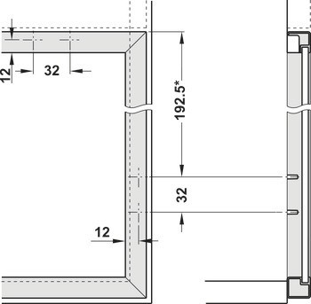
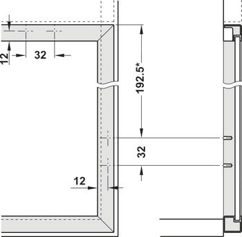
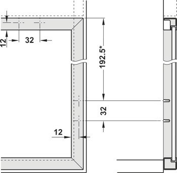
| Vzor vrtání | | 48/6 | 52/5,5 | 45/9,5 |
| Průměr vrtání misky | 35,00 mm | 35.00 mm | 35.0 mm |