






| Barva/povrchová úprava | | Nikl, niklováno |
|---|---|
| Rozsah použití | | Pro průběžnou profilovou tyč Ø 6 nebo 8 mm, pro zámkové vložky vsazované zepředu na místě realizace, pro kombinaci se zámkovou vložkou Symo |
| Montáž | | K přišroubování |
| Materiál | | Zinková slitina |
| Vhodné pro | | Profilové tyče Ø 8 mm | Profilové tyče Ø 6 mm |
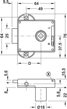
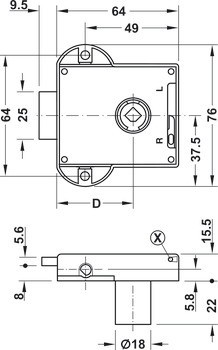
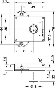
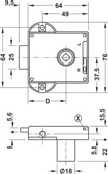
| Poznámka k montáži | | Při návrhu skříní a výběru příslušenství k trojcestným zámkům zohledněte, že otočné trny musí být zkráceny na požadovanou délku.Při dané světlé výšce korpusu ⓒ a montáži trojcestného zámku do středu výšky je délka horní tyče ⓐ a délka spodní tyče ⓑ. Střed těla ⓓ – 25 mmDíky třem rozdílným rozměrům backsetu (15, 25 a 40 mm) je při stejném vzoru vrtání u korpusů rohové skříňky a řady korpusů možné vytvořit identické velikosti mezery.Upozornění: Standard Nova, backset 40 mm je připraven pro průběžnou profilovou tyč. |
| Průměr těla | 18,00 mm |
| Povrchová úprava | | niklováno |
| Backset | | 40,00 mm |
| Rozměr zdvihu závory | 9,50 mm |
| Montáž | | levé nebo pravé |
| Délka těla vložky | | 22,00 mm |
| Funkčnost | | Přestavení směru zamykání je možné i v namontovaném stavu, zámek přitom musí být zamčený.Při použití třícestného zámku Standard-Nova v levém provedení s jehličkovou výměnnou vložkou musí být použita speciální zamykací oliva, viz Příslušenství. |
| Připraveno pro |