




1 zadlabací zámek
1 protiplech
1 poniklovaný sklopný kroužek na klíče


| Barva/povrchová úprava | | matná | barva stříbra, lakovaná |
|---|---|
| Materiál | | Nerez | Ocel |
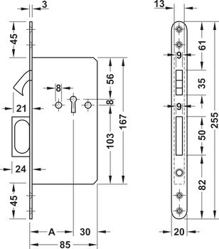
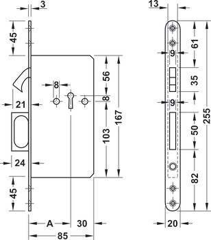
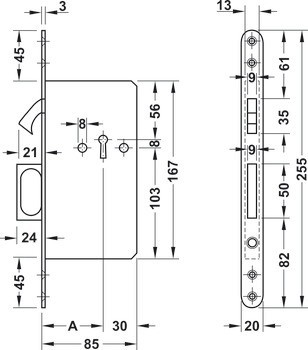
| Backset | | 55,00 mm |
| Pro materiál dveří | dřevo |
| Verze | | s úchytkou (lze odemknout tlačítkem) |
| Pro typ dveří | Posuvné dveře |
| Šířka čelního plechu | 20,00 mm |
| Design čelního plechu | Plochý čelní plech zaoblený |
| Typ zámku | CB |
| Rozsah použití | Rezidenční sektory |
| Délka čelního plechu | | 255,00 mm |
| Verze závory | Kruhová závora |